An Arooga’s Grille House & Sports Bar franchise received Planning Board approval to be built adjacent to the Home2Suites on East Milton Avenue near Paterson Street and Routes 1/9.
Become a Patron!
If you find this post valuable, consider making a contribution via PayPal or Buy Me a Coffee – or support local news you don’t get anywhere else all year round by becoming a monthly Patron.
The Planning Board unanimously approved the application (7-0) after about 75 minutes of testimony and questions, including comments from two residents, during its Sept. 26 regular meeting. Moonstone, LLC came before the Planning Board seeking preliminary and final major site plan approval with bulk C variances for 667 E. Milton Ave.
Family Hospitality, LLC presented the plan for a restaurant to the Redevelopment Agency last October. Future development of a restaurant was part of the original Planning Board approval in 2009 for a 93-unit extended stay hotel, adjacent to a 74-unit Best Western on Paterson Street. The Redevelopment Agency at the time approved a resolution recommending that City Council amend the redevelopment plan.
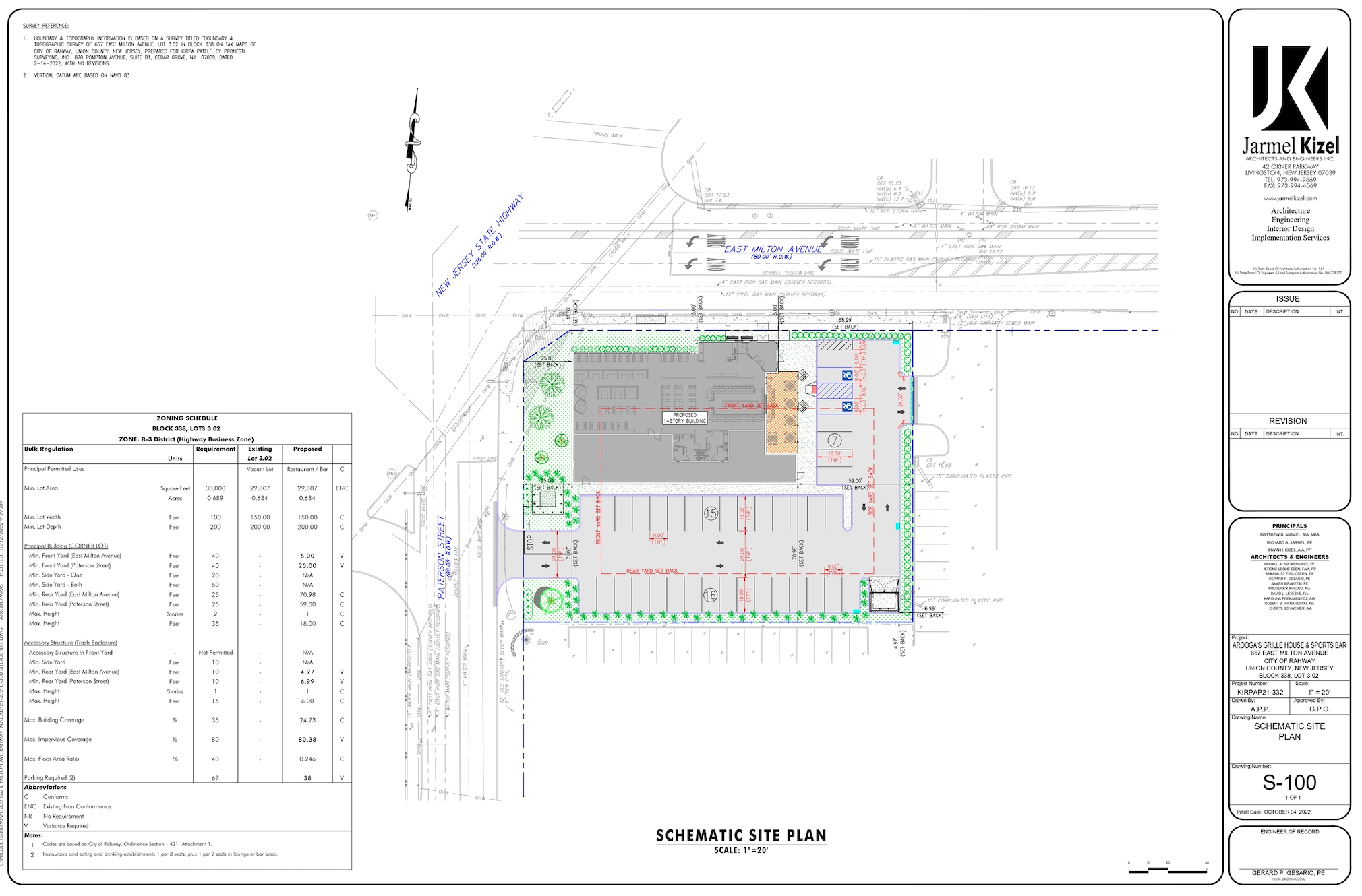
This most recent application sought variances for parking, square footage, signage and lot coverage.
Harrisburg, Pa.-based Arooga’s has three existing locations in New Jersey: East Brunswick, Howell, and The College of New Jersey in Ewing.
The one-story, 7,344-square-foot building would include 128 seats with a bar of 72 seats for total capacity of 200. The restaurant would be situated on the northwest corner of the property, which is about two-thirds of an acre and currently only includes a sign identifying Home2Suites, said Gerard Gesario, the applicant’s engineer.
Primary access to the site would be shared with the Home2Suites hotel to the east. A secondary access to the property would be via Paterson Street but Gesario anticipates the bulk of traffic using the primary access on East Milton Avenue.
The application proposed 38 on-site parking spaces where 78 are required by code, prompting one of the variances. A shared parking agreement between the restaurant and the Home2Suites, which has 92 spaces, would provide for a total of 130 spaces across the two sites. Leigh Fleming, the Planning Board’s planner, said the applicants are permitted to use shared parking agreements to address shortfalls but they are subject to Planning Board approval.
Another variance would be for square footage, as 30,000 is required but the site falls short at 29,807, and lot coverage, which is 81.7% where a maximum 80% is allowed. Facade signage also is limited to 100 square feet but the proposal included a sign of 144 square feet.
The 199-seat restaurant would operate weekdays from 11 a.m. to midnight and weekends from 11 a.m. to 2 a.m. Most deliveries would occur by 10 a.m. at the rear of the building.
Traffic engineer Lee Kline described the hotel and restaurant as having “complementary hours.” When the restaurant closed, most hotel customers are parked; when hotel customers are away, most restaurant customers would park.
Based on parking counts at hotels and restaurants, Kline projected a noon lunch parking count of about 90 cars for the restaurant and 30 for the hotel on a typical weekday. Projections would be similar for a Saturday afternoon with slightly more cars for the hotel and slightly less for the restaurant. That doesn’t take into account that some people may stay at the hotel, leave their car parked and walk to the restaurant, he said.
Kirpa Patel, a principal in Moonstone LLC and Family Hospitality, owner of both lots, estimated about 50 cars at the hotel on a typical weekend. Roughly 80% to 85%, 50% to 60% are extended stay who carpool or don’t have a car. Monday through Thursday is primarily corporate customers, including nearby Merck, and weekends might have more families and people coming to the area.
Kline estimated that when the restaurant is busiest on a Friday and Saturday night, the hotel would have about 50 cars while the restaurant would have about 80 cars.
Church Street resident Thomas Hodge, a member of the nearby Rahway Yacht Club, noted that Paterson Street is actually an exit from the Union County incinerator. “Our concern, on any given day, is getting out of the club, waiting for this [traffic] light to cycle; sometimes it takes two, three cycles, before I can get across Route 1,” he said. The facility processes almost 1,500 trucks a day and truck traffic can back up, he said, and adding another 90 cars to the mix is going to be a problem.
The best case scenario is that it wouldn’t affect the yacht club, Hodge said, but the most probable scenario would be that it causes gridlock. “This is a recipe for disaster,” he said. “Our gate has been smashed by trucks trying to turn around here,” suggesting an exit on East Milton Avenue, not Paterson Street, could resolve the issue.
Gesario said they expect the main driveway to be on East Miloton Avenue because people aren’t going to use an exit that might be a difficult movement or an awkward left turn.
1st Ward Councilman Al Parker of East Milton Avenue reiterated that trucks back up in the morning and afternoon. He suggested trying to find another way to get in besides East Milton Avenue.
Become a Patron!
If you find this post valuable, consider making a contribution via PayPal or Buy Me a Coffee – or support local news you don’t get anywhere else all year round by becoming a monthly Patron.
